Закрыть галерею
Изображение 27 из 28

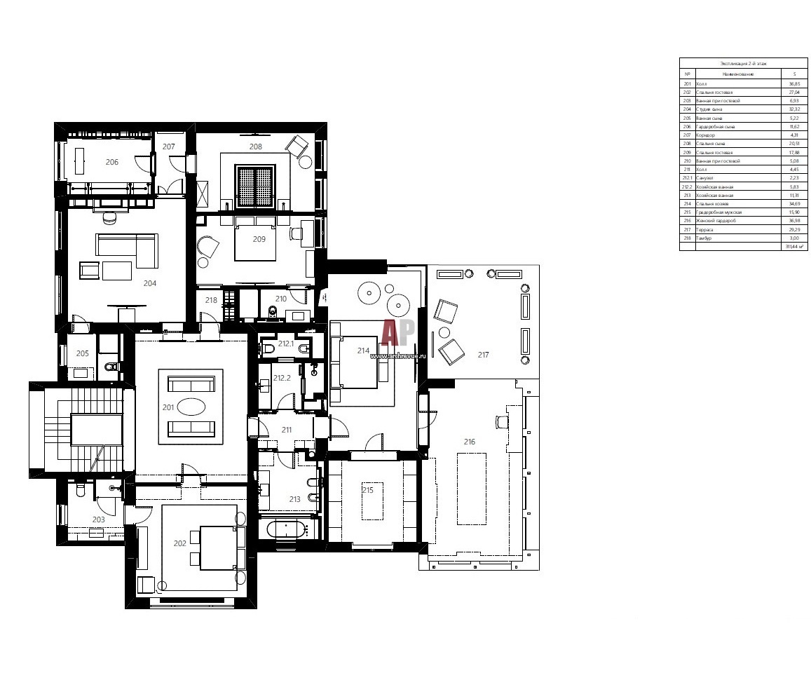
План второго этажа трехэтажного дома в поселке Малаховка. Общая площадь: 752 кв. м.

Планировка 2 этажа 3-х этажного реконструированного дома в Подмосковье. 

Проект: Трехэтажный дом в Малаховке с элементами ар-деко, лофта и шале
Автор проекта: Клодт Олег, Агапова Анна
Объект: Эклектичный дом для большой семьи
Общая площадь: 752 кв.м.