Закрыть галерею
Изображение 18 из 18

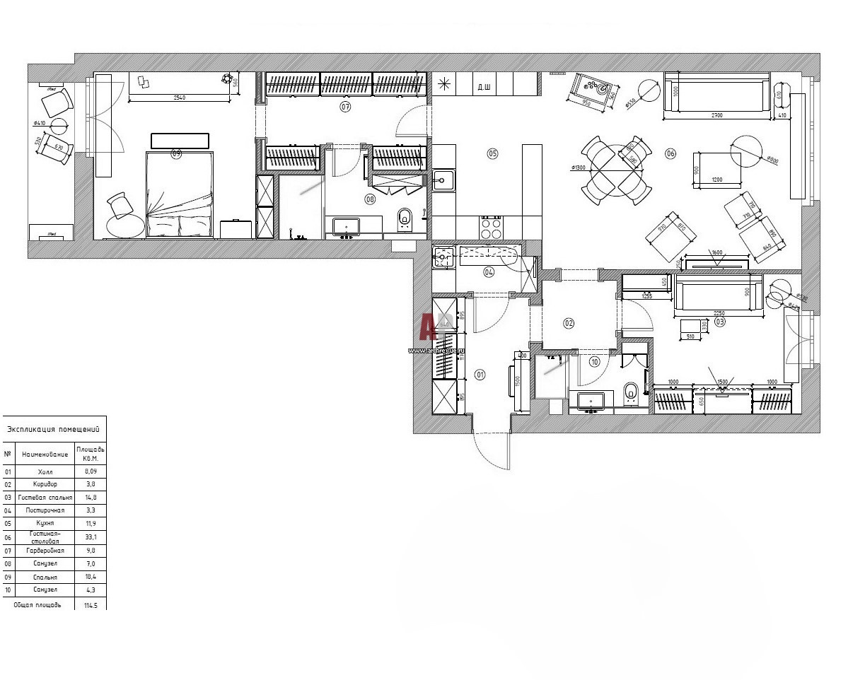
План 3-х комнатной квартиры в новостройке в Хамовниках.

Планировка трехкомнатной квартиры в ЖК «Литератор». Общая площадь – 115 кв. м.

Проект: Эстетская квартира в ЖК «Литератор» для светской леди
Автор проекта: Мельникова Маргарита
Соавтор(ы): Высоцкая Кристина
Объект: Апартаменты в стиле ар-деко в Хамовниках
Общая площадь: 115 кв.м.