Закрыть галерею
Изображение 24 из 24

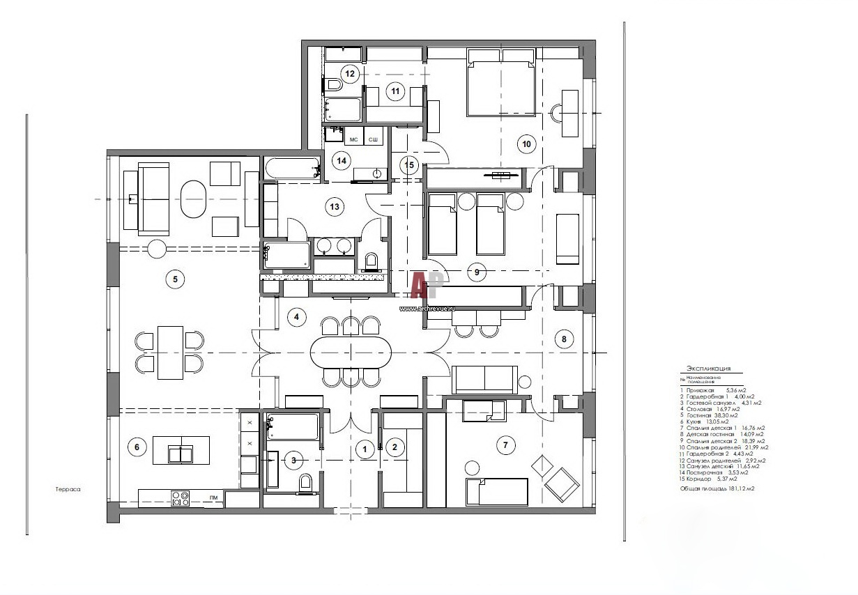
Планировка пентхауса с анфиладными помещениями и эффектными видовыми перспективами.

План квартиры с тремя спальни и открытыми террасами. Общая площадь – 180 кв. м.

Проект: Панорамный пентхаус в жемчужно-голубых тонах с открытой террасой
Автор проекта: Крашенинникова Ирина
Объект: Светлый пентхаус с элементами современной классики
Общая площадь: 180 кв.м.