Закрыть галерею
Изображение 30 из 30

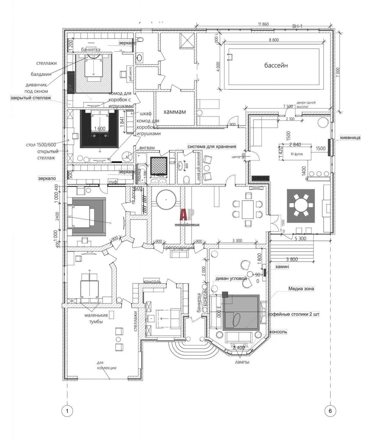
План современного одноэтажного дома в Тамани.

Планировка одноэтажного семейного дома с бассейном. Общая площадь – 600 кв. м.

Проект: Интерьер одноэтажного семейного дома с элементами ар-деко
Автор проекта: Скоробогатова Ирина
Объект: Эклектичный дом в Тамани
Общая площадь: 600 кв.м.