Закрыть галерею
Изображение 16 из 17

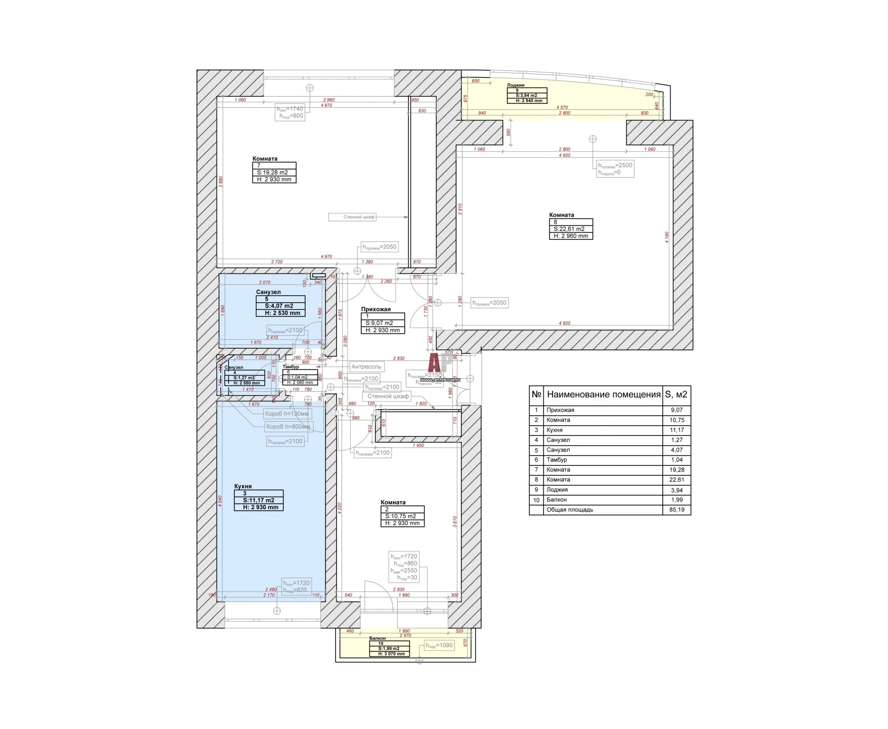
Планировка квартиры до реконструкции.

Исходный план квартиры в доме советской постройки. Общая площадь – 86 6 кв. м.

Проект: Современный интерьер на Патриарших прудах для молодой женщины
Автор проекта: Новинский Михаил
Объект: Белая квартира на Патриарших
Общая площадь: 86,6 кв.м.