Закрыть галерею
Изображение 32 из 33

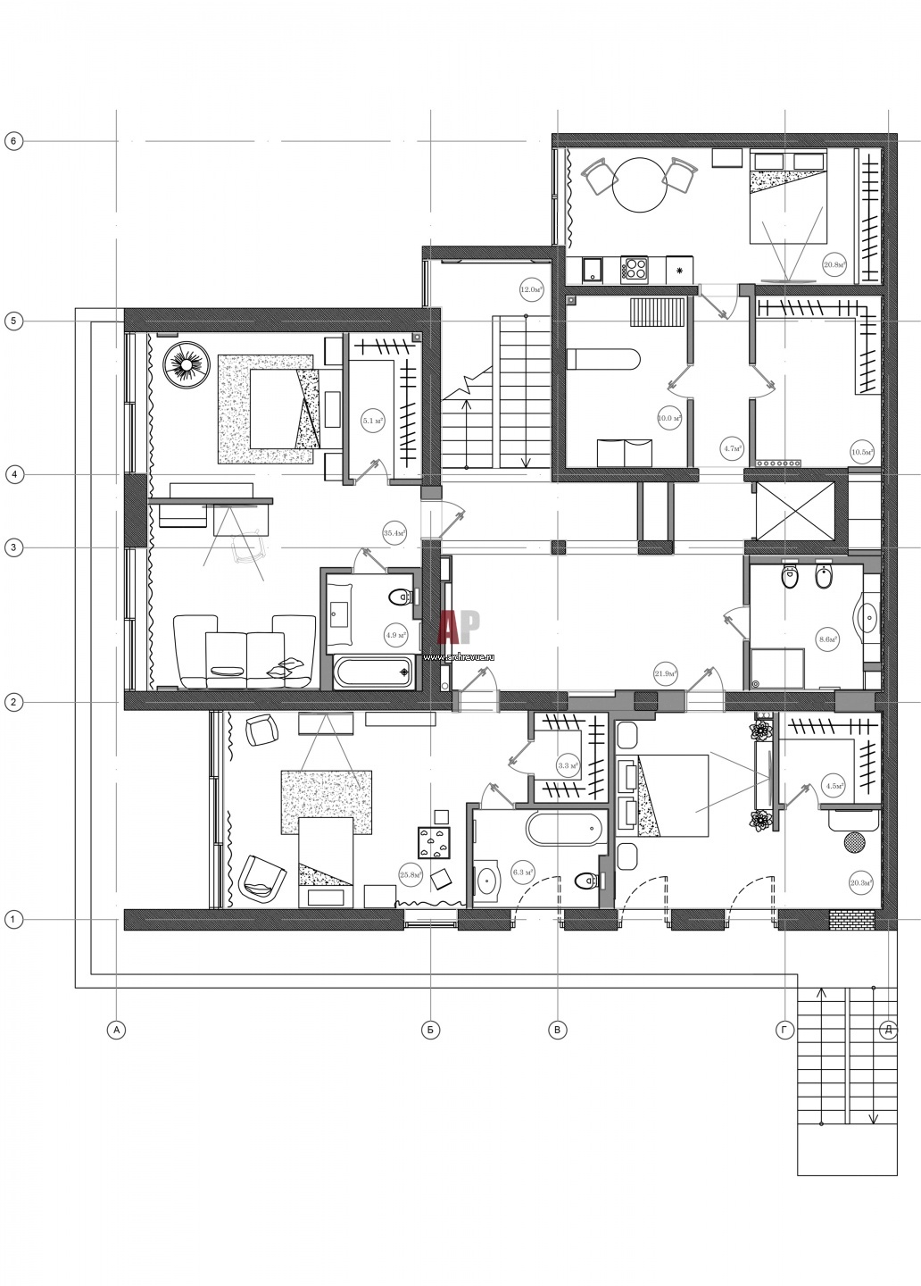
Перепланировка минус 1 этажа типового 4-х этажного коттеджа в Сочи. Общая площадь – 750 кв. м.

План минус первого этажа большого семейного особняка на берегу Черного моря.

Проект: Четырехэтажный респектабельный особняк в Сочи
Автор проекта: Туйсузян Елена
Объект: Дом мечты на берегу Черного моря
Общая площадь: 750 кв.м.