Закрыть галерею
Изображение 21 из 21

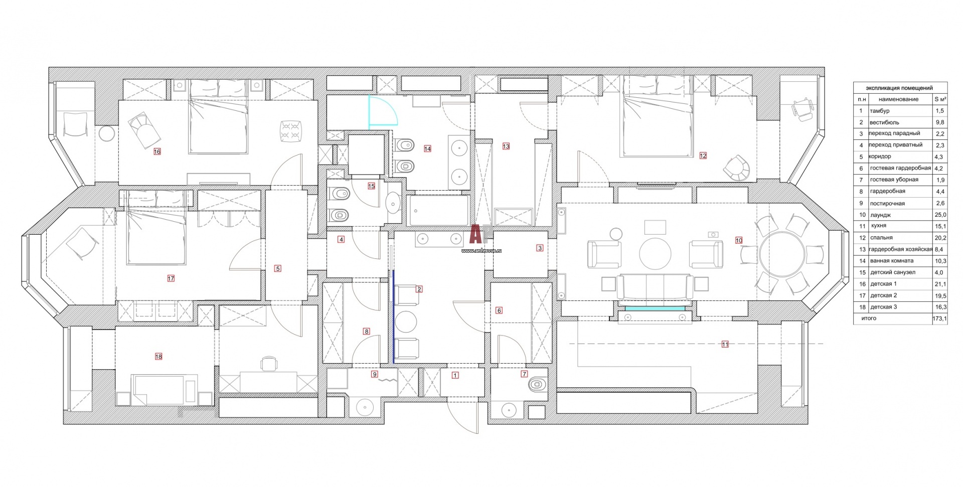
Планировка квартиры для семьи с тремя детьми.

План большой семейной квартиры с изолированными помещениями. Общая площадь – 180 кв. м.

Проект: Большая семейная квартира в стиле фьюжн
Автор проекта: Павловская Анна
Объект: Квартира с природной палитрой
Общая площадь: 180 кв.м.