Закрыть галерею
Изображение 42 из 42

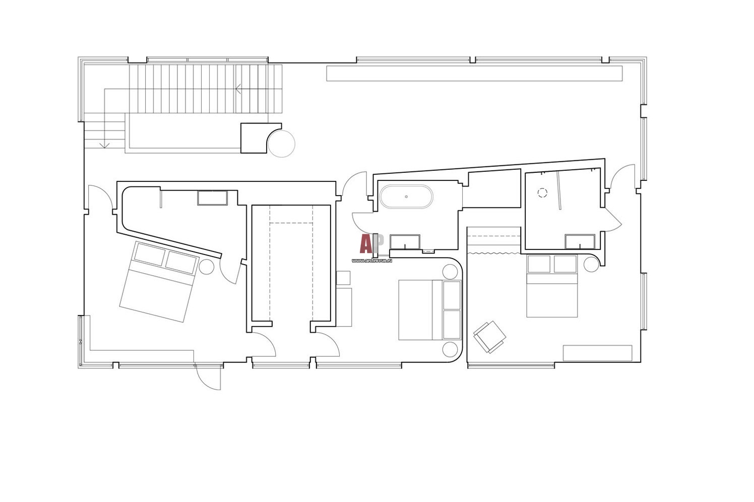
План второго этажа бетонного дома в Подмосковье. Общая площадь - 420 кв. м.

Планировка 2 этажа современного 3-х этажного дома. 

Проект: Артистичный бетонный интерьер трехэтажного дома в современном стиле
Автор проекта: Колчин Сергей
Объект: Бетонный дом в Подмосковье
Общая площадь: 420 кв.м.