Закрыть галерею
Изображение 31 из 32

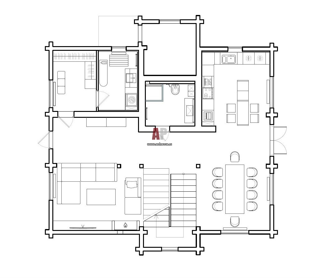
Планировка первого этажа двухэтажного шале в Подмосковье. Общая площадь – 200 кв. м.

План 1 этажа 2-х этажного типового деревянного дома после перепланировки. 

Проект: Современный двухэтажный деревянный дом из клееного бруса в Подмосковье
Автор проекта: Крюков Константин
Объект: Современное шале с брутальным декором
Общая площадь: 200 кв.м.