Закрыть галерею
Изображение 19 из 19

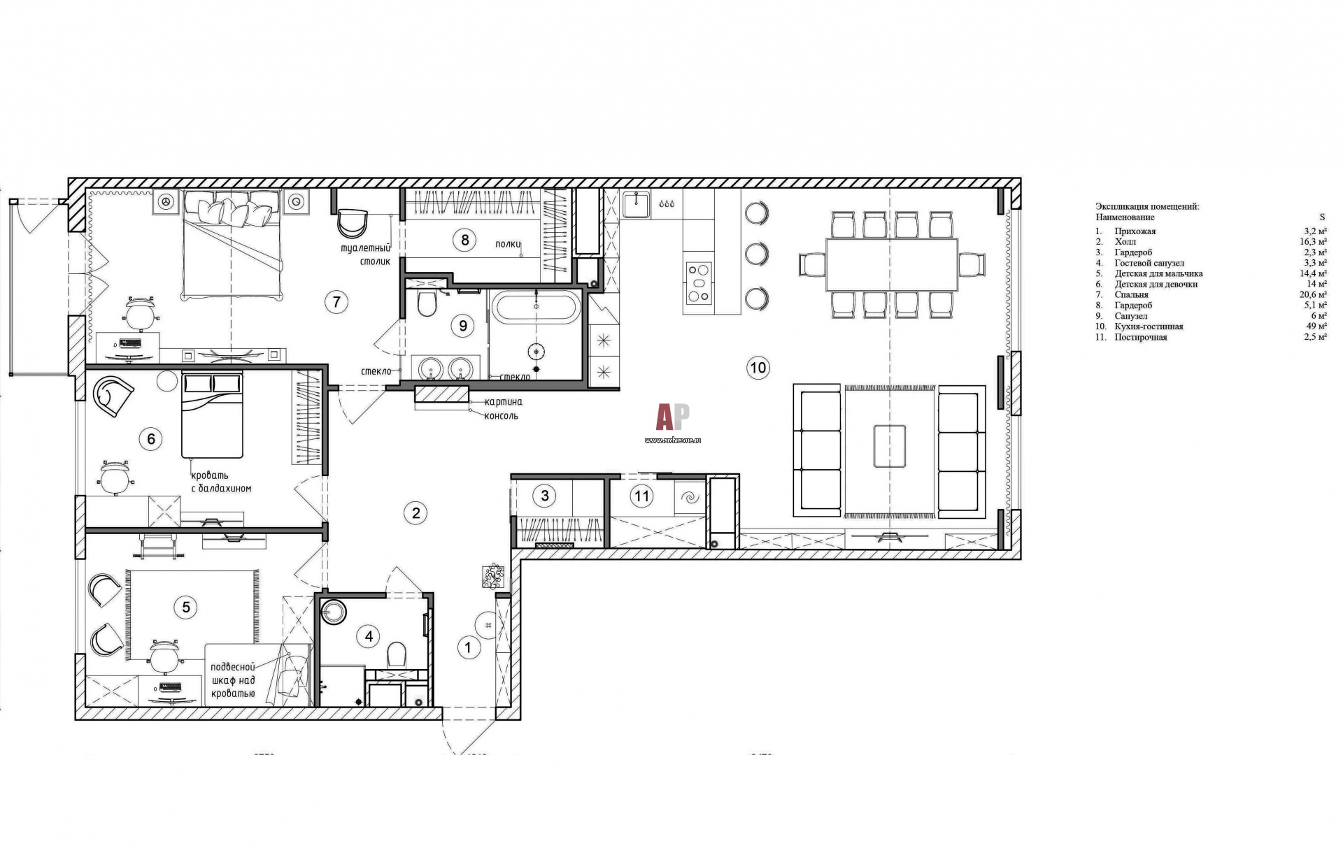
Перепланировка 4-х комнатной квартиры в ЖК «Сердце столицы». Общая площадь – 140 кв. м.

План четырехкомнатной квартиры в новостройке. 

Проект: Семейная квартира в стилистке бельгийского минимализма
Автор проекта: Вольвач Виктория
Объект: Спокойная квартира для активной семьи
Общая площадь: 140 кв.м.