Закрыть галерею
Не удалось загрузить картинку
Изображение
26
из
26
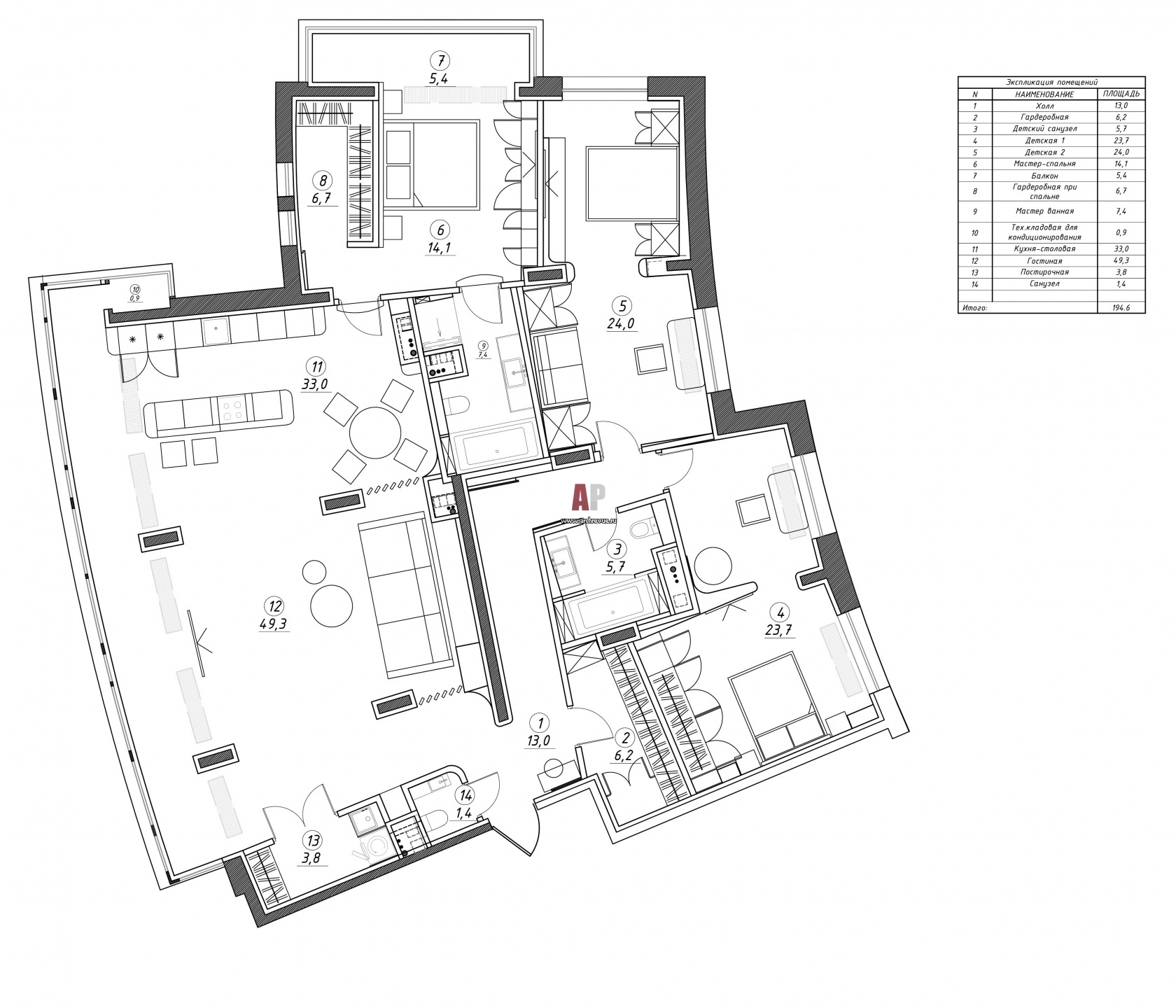
Перепланировка 4-х комнатной квартиры в новом ЖК, 220 кв. м.
Планировка квартиры для семи с двумя детьми.
Проект:
Семейная квартира со стеновыми радиусными панелями из дуба
Автор проекта:
Махов Сергей
Объект:
Квартира в стиле софт-минимализм
Общая площадь:
220 кв.м.
ё
1
2
3
4
5
6
7
8
9
0
-
=
й
ц
у
к
е
н
г
ш
щ
з
х
ъ
\
ф
ы
в
а
п
р
о
л
д
ж
э
я
ч
с
м
и
т
ь
б
ю
.