Закрыть галерею
Изображение 15 из 15

Маленькая «трешка» 73 кв. м в старом жилом фонде в центре Москвы.

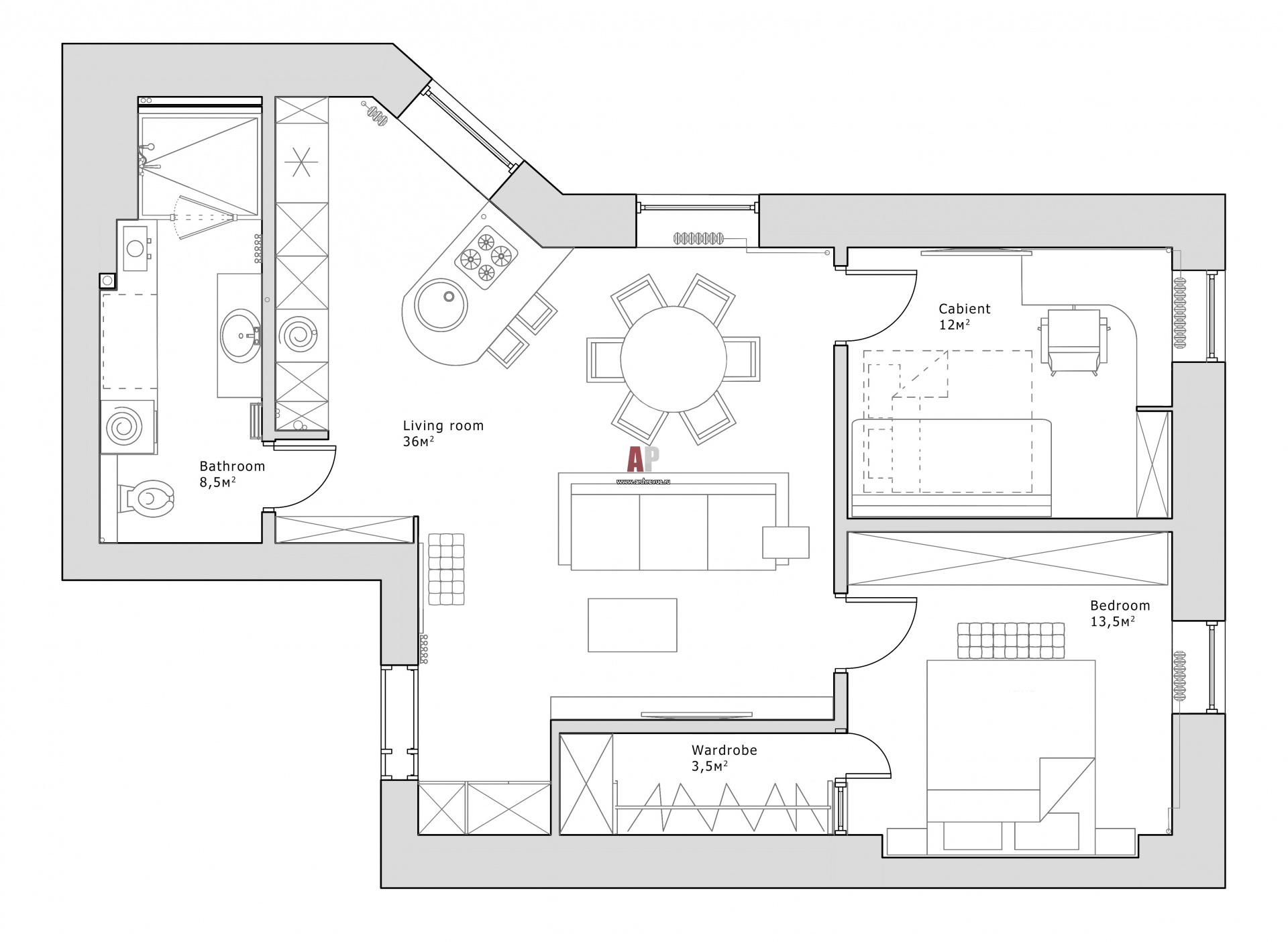
План трехкомнатной квартиры в доме 1925 года постройки в районе Цветного бульвара. Общая площадь – 73 кв. м.

Проект: Современная трехкомнатная квартира с тактильным интерьером для отдыха
Автор проекта: Савельева Рина, Шокогоуи Евгения
Объект: Спокойная квартира в тихом центре
Общая площадь: 73 кв.м.