Закрыть галерею
Изображение 31 из 31

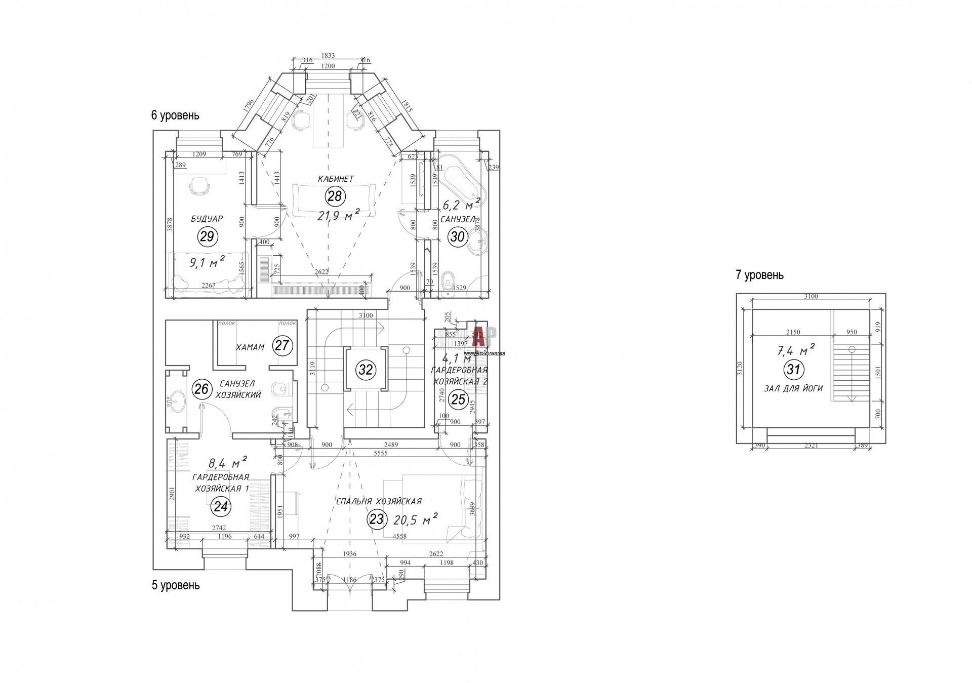
Планировка многоуровневого пентхауса.

План пятого, шестого и седьмого этажей семиуровневого танухауса. Общая площадь - 320 кв. м.

Проект: Семиуровневый таунхаус в Подмосковье для семьи с двумя детьми
Автор проекта: Маркос Юлия
Объект: Изящная классика. Интерьер таунхауса
Общая площадь: 320 кв.м.