Закрыть галерею
Изображение 33 из 34

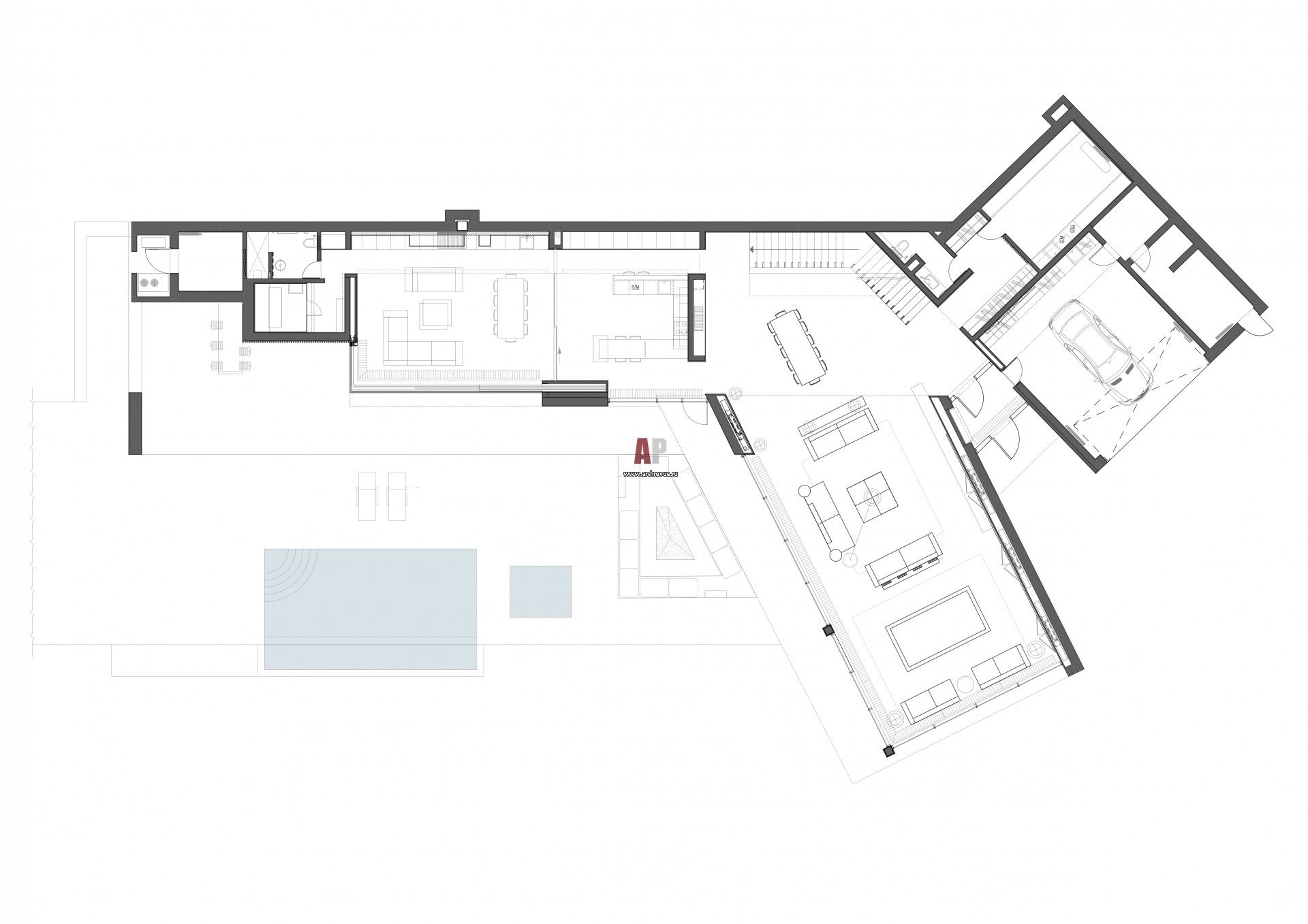
Планировка 1 этажа 2-х этажной модернистской виллы на море.

План первого этажа двухэтажного дома на побережье Азовского моря. Общая площадь – 800 кв. м.

Проект: Двухэтажный минималистский дом на берегу лимана
Автор проекта: Федорова Александра
Объект: Вилла на Азовском море
Общая площадь: 800 кв.м.