Закрыть галерею
Изображение 30 из 31

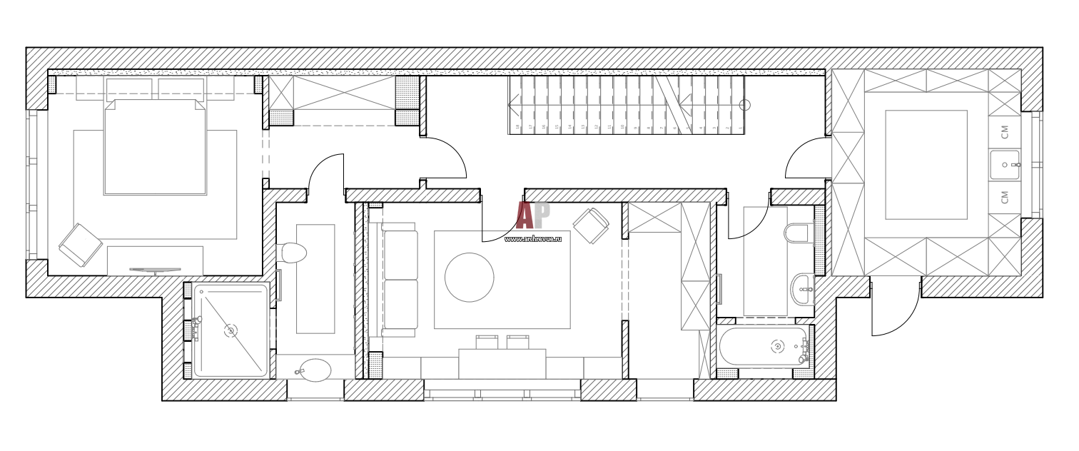
Планировка 2 этажа небольшого загородного дуплекса.

План второго этажа трехэтажного маленького дома для молодой семьи. Площадь – 250 кв. м.

Проект: Трехэтажный дом с мансардой и необычной цветовой палитрой в оттенках розового, бежевого и голубого
Автор проекта: Арапова Кристина
Объект: Дизайнерский дуплекс для молодой семьи
Общая площадь: 250 кв.м.