Закрыть галерею
Изображение 22 из 23

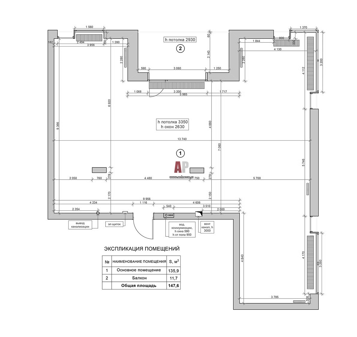
Исходная планировка квартиры площадью 147,8 кв. м.

Обмерочный план квартиры в ЖК «Парк Рублево» с открытым балконом и выходом на участок. Общая площадь - 147,8 кв. м.

Проект: Интерьер подмосковной квартиры с функциональным дизайном и сложной технической начинкой
Автор проекта: Стрелюк Алексей
Объект: Функциональная квартира для семьи
Общая площадь: 147,8 кв.м.