Закрыть галерею
Изображение 22 из 22

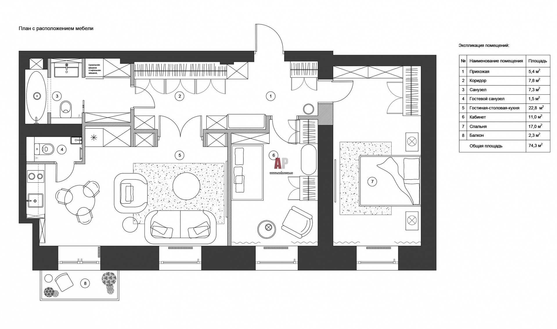
Перепланировка 3-х комнатной квартиры в сталинском доме. Общая площадь – 74 кв. м.

Планировка небольшой трехкомнатной квартиры. 

Проект: Современный интерьер с ностальгией по наследию советской эпохи
Автор проекта: Юнина Наталья
Объект: Квартира с видом на Новодевичий монастырь
Общая площадь: 74 кв.м.