Закрыть галерею
Не удалось загрузить картинку
Изображение
29
из
30
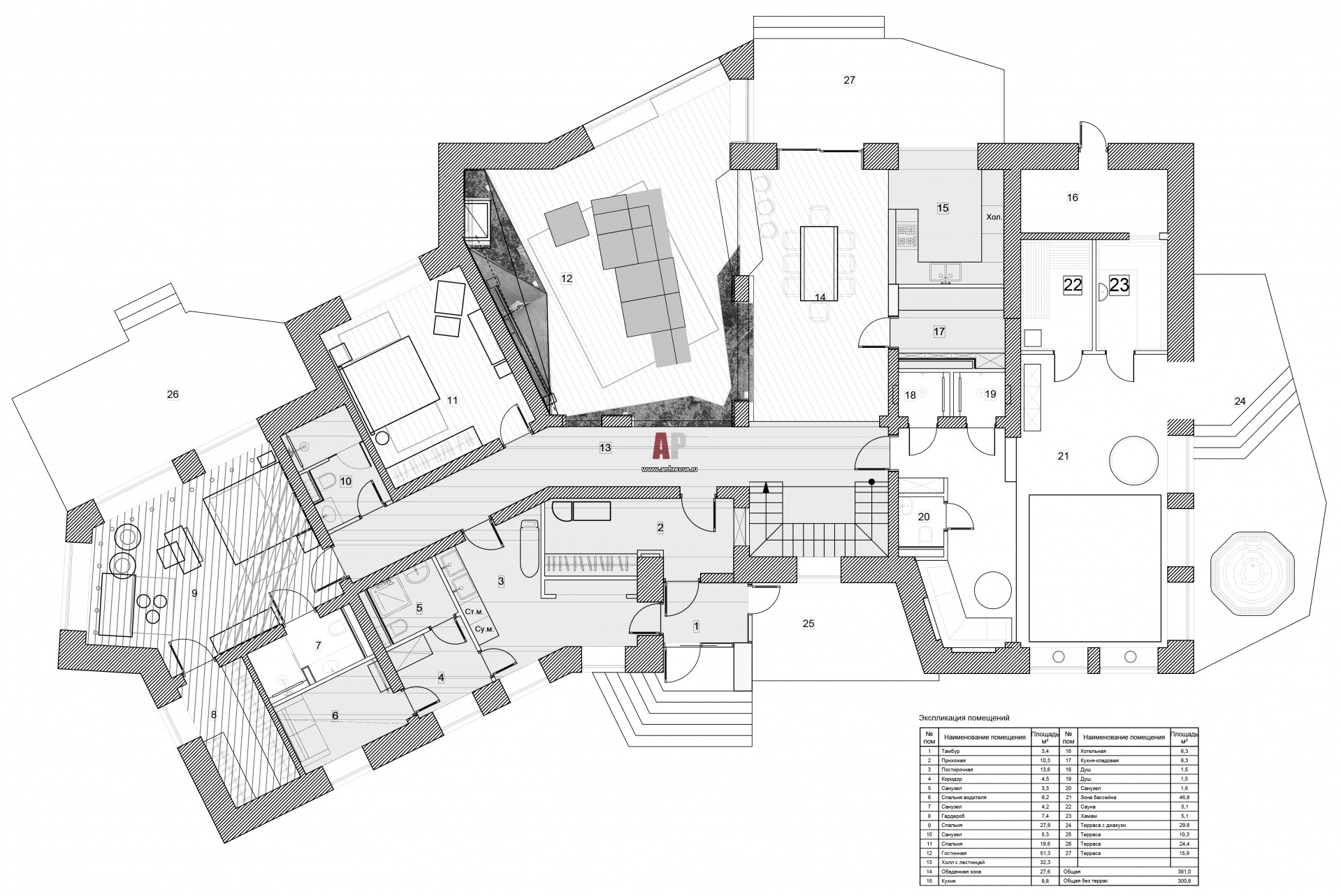
Планировка 1 этажа 2х этажного дома в поселке Борки.
План первого этажа двухэтажного дома со сложной планировкой. Общая площадь – 600 кв. м.
Проект:
Интерьер двухэтажного дома в Борках со сложной архитектурой
Автор проекта:
Василькова Дарья
Объект:
Эклектичное шале в Подмосковье
Общая площадь:
600 кв.м.
ё
1
2
3
4
5
6
7
8
9
0
-
=
й
ц
у
к
е
н
г
ш
щ
з
х
ъ
\
ф
ы
в
а
п
р
о
л
д
ж
э
я
ч
с
м
и
т
ь
б
ю
.