Закрыть галерею
Изображение 15 из 15

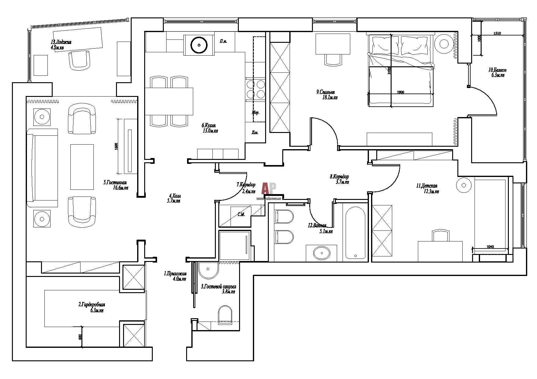
План 3-з комнатной квартиры 105 кв. м с двумя спальнями и изолированной кухней.

Планировка трехкомнатной квартиры площадью 105 кв. м с двумя лоджиями.

Проект: Квартира в монолитной высотке
Автор проекта: Шабельникова Варвара
Объект: Неоклассика в пастельных тонах
Общая площадь: 105 кв.м.