Закрыть галерею
Изображение 29 из 30

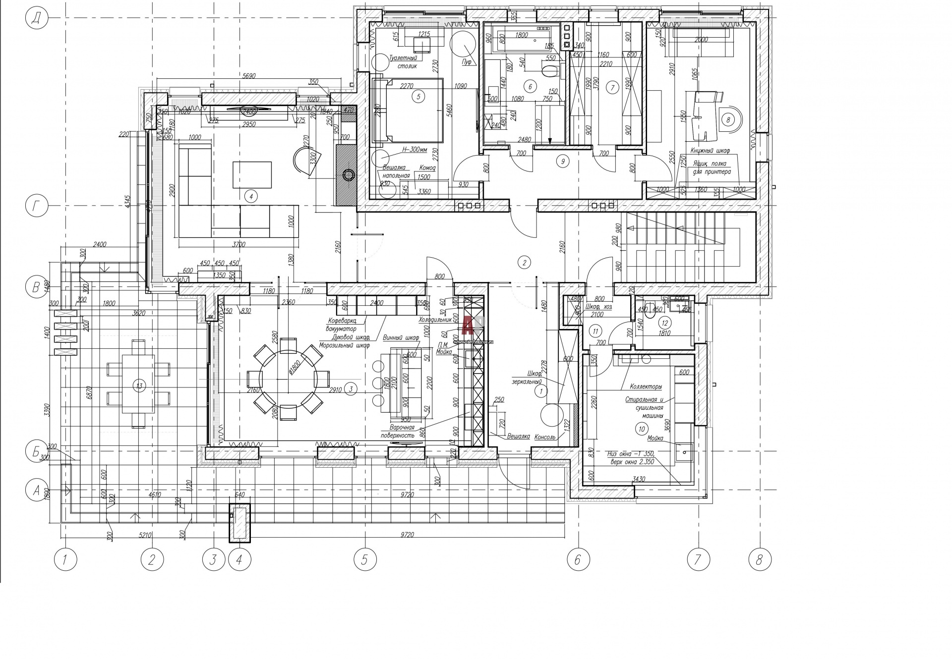
План первого этажа двухэтажного дома в Репино. Общая площадь – 430 кв. м.

Планировка 1 этажа 2-э этажного дома, построенного по индивидуальному проекту. 

Проект: Современный дом под Санкт-Петербургом в оттенках природы
Автор проекта: Скачкова Юлия
Объект: Лаконичный двухэтажный дом в Репино
Общая площадь: 300 кв.м.