Закрыть галерею
Изображение 31 из 33

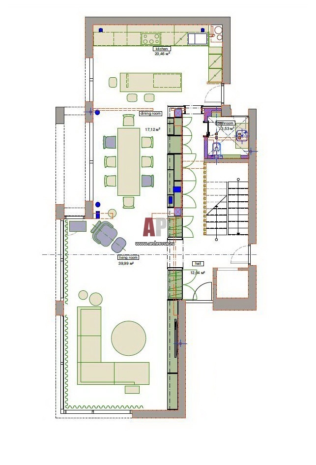
Планировка 1 этажа 3-х этажного дома с эксплуатируемым цоколем.

План первого этажа дома для постоянного проживания большой семьи в Барселоне. Общая площадь – 370 кв. м.

Проект: Дом с продуманной эргономикой, элементами скандинавского дизайна и винтажными предметами
Автор проекта: Голубцова Елизавета, Бирюкова Марина
Объект: Дом в Барселоне для большой семьи
Общая площадь: 370 кв.м.