Закрыть галерею
Изображение 16 из 19

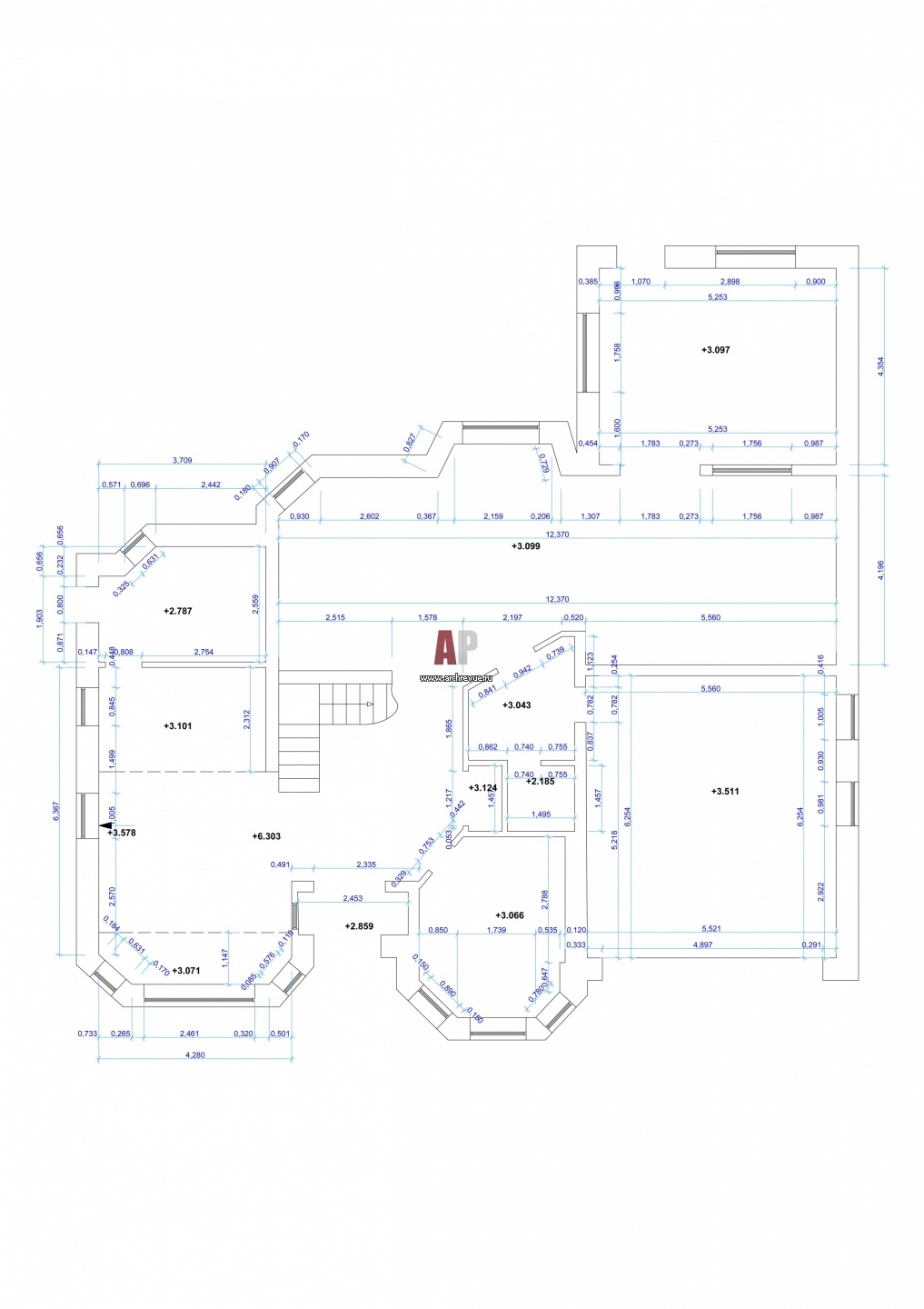
Обмерный план первого этажа 2-х этажного дома площадью 350 кв. м.

План первого этажа дома с обмерами в Новогорске до реконструкции. Общая площадь - 350 кв. м.

Проект: Двухэтажный загородный дом в стиле фьюжн
Автор проекта: Ожогин Сергей
Объект: Правила комфорта
Общая площадь: 350 кв.м.