Закрыть галерею
Изображение 17 из 17

План небольшой 3-х комнатной квартиры в Подмосковье.

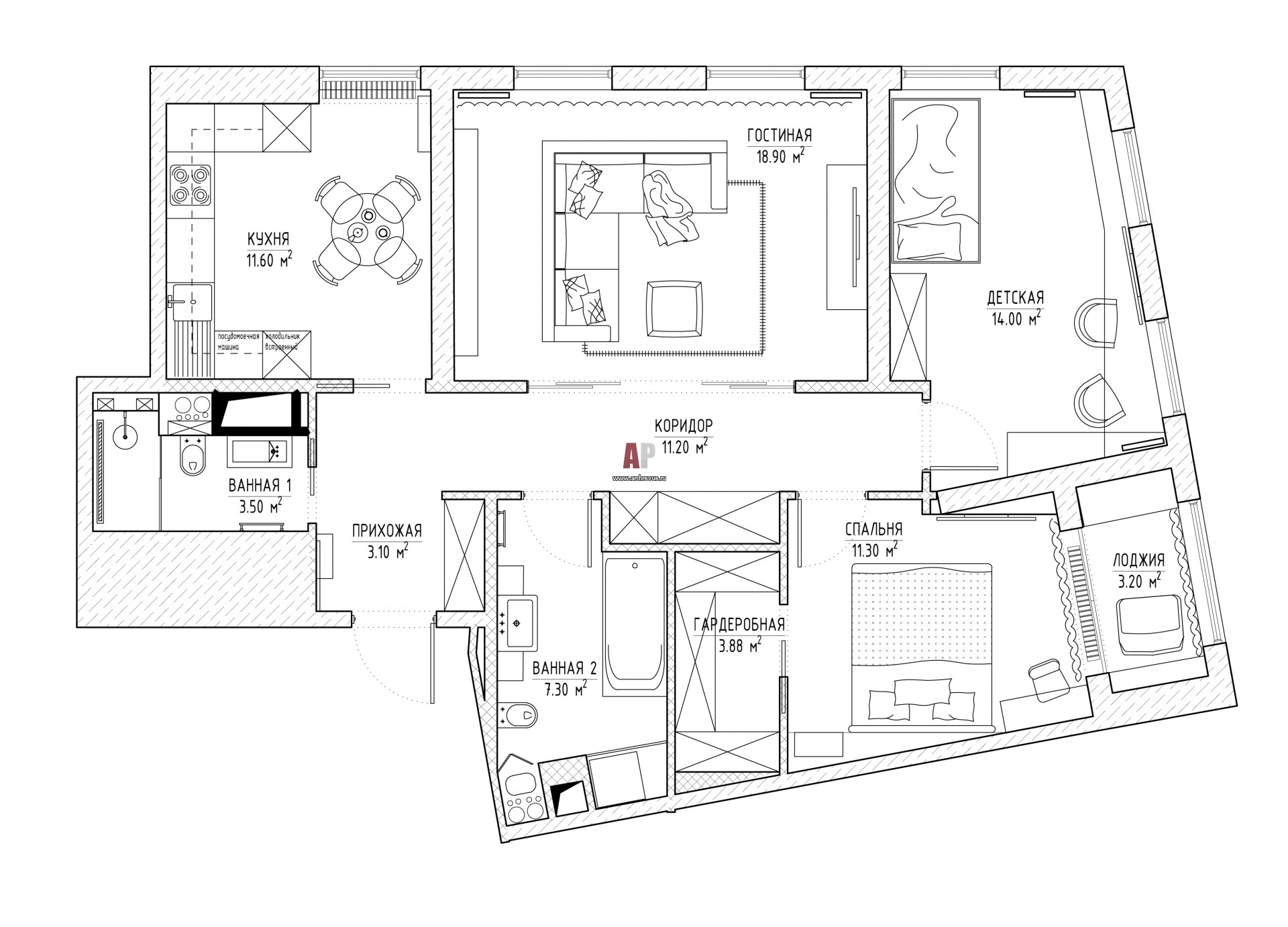
Планировка трехкомнатной квартиры в новостройке в Сколково. Общая площадь – 91 кв. м.

Проект: Интерьер серой 3-х комнатной квартиры со стеклянной перегородкой в Сколково
Автор проекта: Губина Мария
Объект: Монохромная квартира в Подмосковье
Общая площадь: 91 кв.м.