Закрыть галерею
Изображение 16 из 16

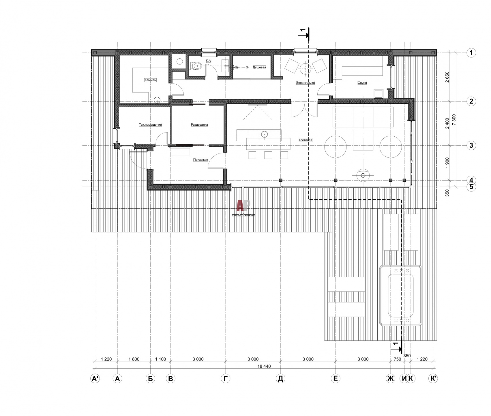
Планировка гостевого дома для отдыха и детских праздников.

План одноэтажного гостевого дома с баней и бассейном на открытой террасе. Общая площадь – 170 кв. м.

Проект: Деревянный дом для отдыха с баней и бассейном на открытой террасе
Автор проекта: Голубцова Елизавета, Бирюкова Марина
Объект: Гостевой дом в скандинавском стиле
Общая площадь: 170 кв.м.