Закрыть галерею
Изображение 37 из 38

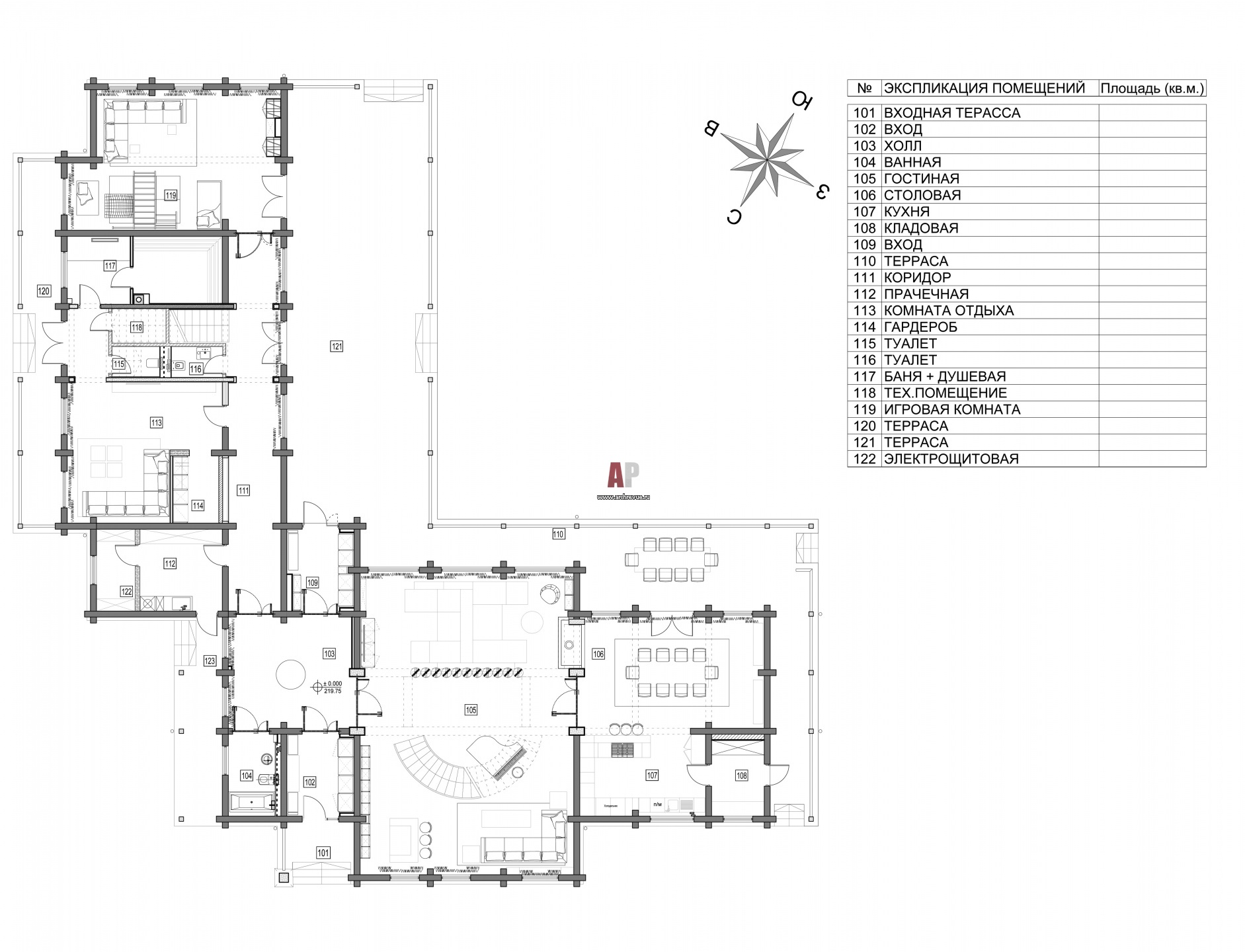
Планировка 1 этажа 2-х этажного дома из кедрового бруса в Белокурихе.

План первого этажа двухэтажного дома на Алтае. Общая площадь - 975 кв. м.

Проект: Деревянный дом и ландшафт с северным характером
Автор проекта: Гармаш Анна, Бркич Ведран
Соавтор(ы): Петерс Герман
Объект: Усадьба из кедрового бруса на Алтае
Общая площадь: 975 кв.м.