Закрыть галерею
Изображение 19 из 20

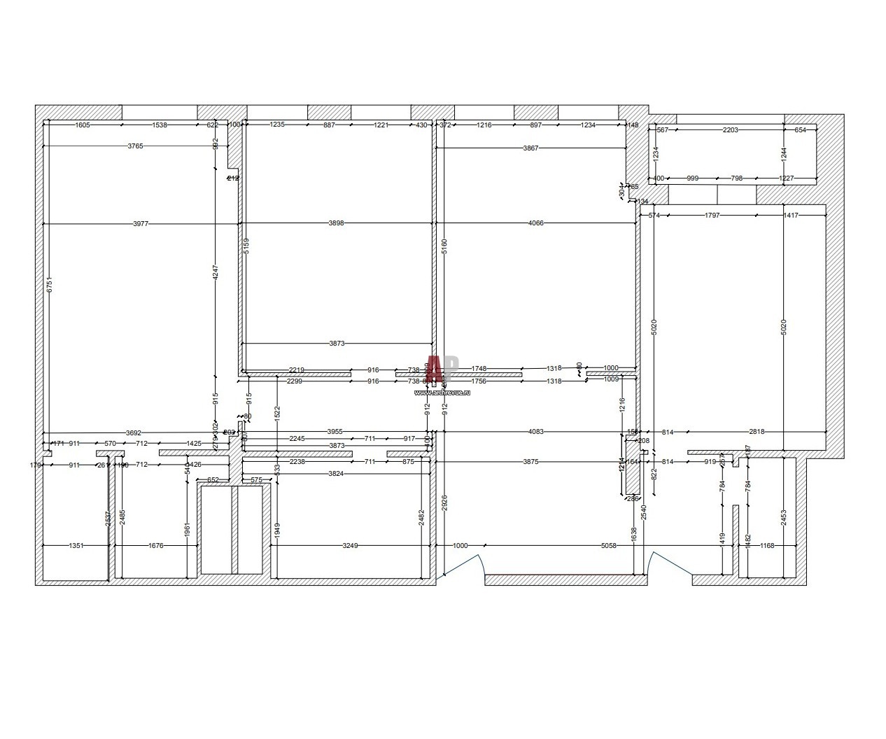
Исходный план квартиры в центре Москвы у реки.

Обмерный план трехкомнатной квартиры в новостройке. Общая площадь – 120 кв. м.

Проект: Лаконичный интерьер квартиры с современным искусством
Автор проекта: Шевченко Анна
Объект: Квартира с террасой на набережной Москвы-реки
Общая площадь: 155 кв.м.