Закрыть галерею
Изображение 28 из 30

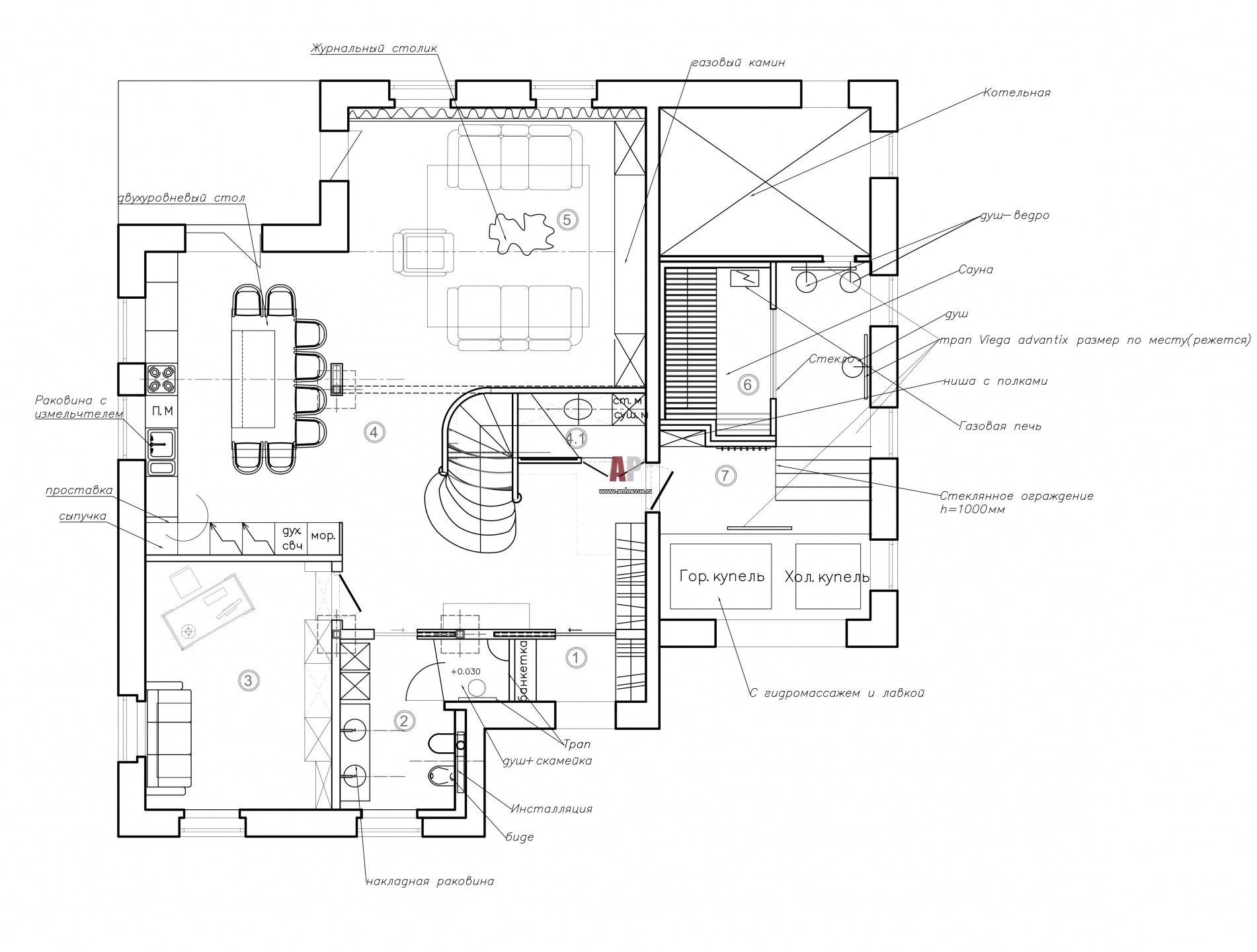
Планировка 1 этажа 3-х этажного дома для выходных и праздников.

План первого этажа трехэтажного дома в поселке «Трувиль». Общая площадь – 350 кв. м.

Проект: Нормандский дом в поселке «Трувиль»
Автор проекта: Антюшин Дмитрий, Синельникова Ирина
Объект: Дом в нормандском стиле
Общая площадь: 350 кв.м.