Закрыть галерею
Изображение 28 из 29

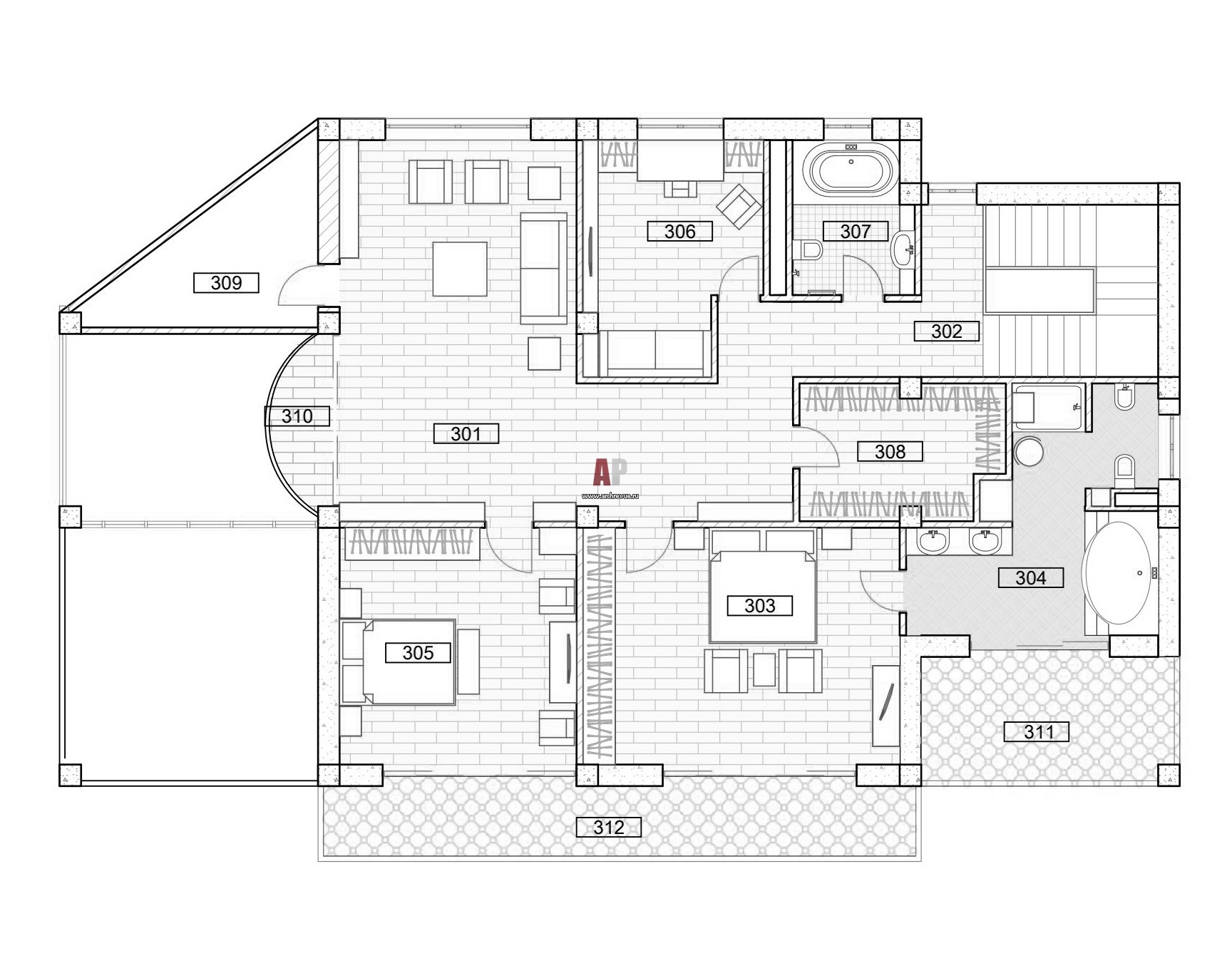
План третьего этажа четырехэтажного дома в Сочи. Общая площадь с террасами - 720 кв. м.

Планировка 3 этажа 4-х этажного дома в стиле эклектика. 

Проект: Эклектичный интерьер 4-х этажного дома на Черноморском побережье России
Автор проекта: Маркина Елена
Объект: Яркий дом в Сочи
Общая площадь: 720 кв.м.