Закрыть галерею
Изображение 29 из 30

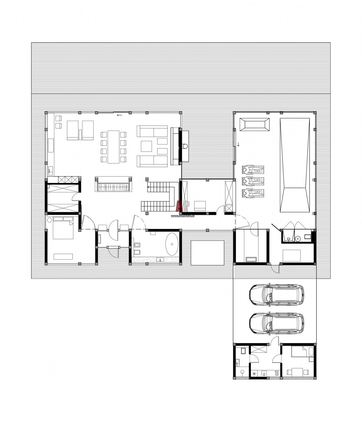
Планировка 1 этажа 2-х этажного дома в клубном поселке «АртЭко» на Новорижском шоссе.

План первого этажа двухэтажного фахверкового дома с панорамным остеклением. Общая площадь – 475 кв. м.

Проект: Двухэтажный дом в стиле фахверк с прозрачными стенами
Автор проекта: Дроздов Дмитрий
Объект: Фахверковый дом из стекла
Общая площадь: 475 кв.м.