Закрыть галерею
Изображение 18 из 18

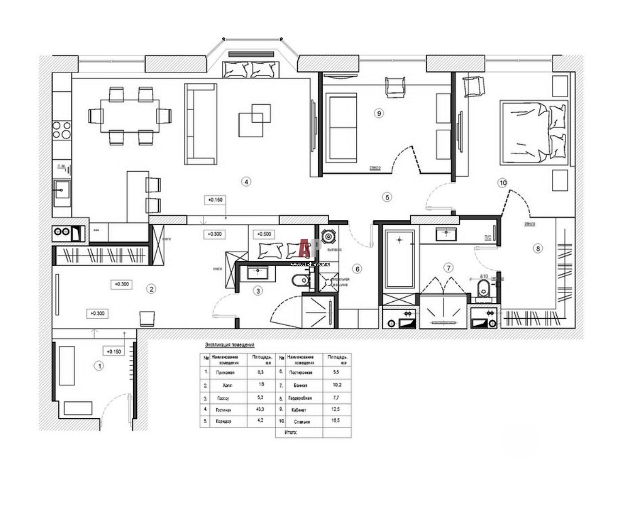
Планировка 3-х комнатной квартиры в скандинавском стиле в ЖК «Алые паруса».

План трехкомнатной квартиры в новостройке. Общая площадь: 130 кв. м.

Проект: Трехкомнатная квартира с деревом и скандинавской мебелью
Автор проекта: Шорина Альбина, Козлов Георгий
Объект: Скандинавский дизайн в московской квартире
Общая площадь: 130 кв.м.