Закрыть галерею
Изображение 27 из 30

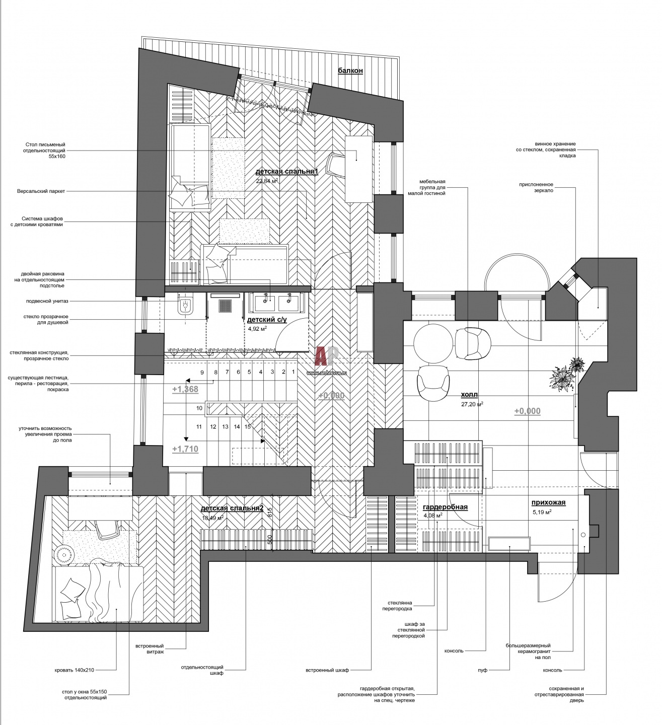
План первого этажа четырехэтажного пентхауса на Знаменке. Жилая площадь – 170 кв. м.

Планировка 1 этажа 4-х этажной реконструированной квартиры в историческом доме начала ХХ века. 

Проект: Эклектичный интерьер пентхауса для потомственной художницы
Автор проекта: Уборевич-Боровский Борис
Соавтор(ы): Мария Зимина, Дарья Туранская
Объект: Четырехэтажный пентхаус на Знаменке
Общая площадь: 170 кв.м.