Закрыть галерею
Изображение 28 из 29

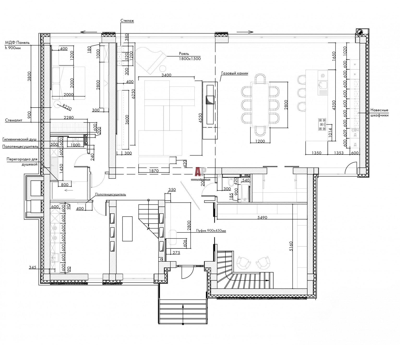
План первого этажа двухэтажного дома на Истре. Общая площадь – 426 кв. м.

Дом в Истринском районе Подмосковья. План 1 этажа. 

Проект: Двухэтажный дом на Истре в стиле минимализм
Автор проекта: Никитина Виолетта , Полякова Екатерина
Объект: Современный дом с мужским характером
Общая площадь: 426 кв.м.