Закрыть галерею
Изображение 20 из 20

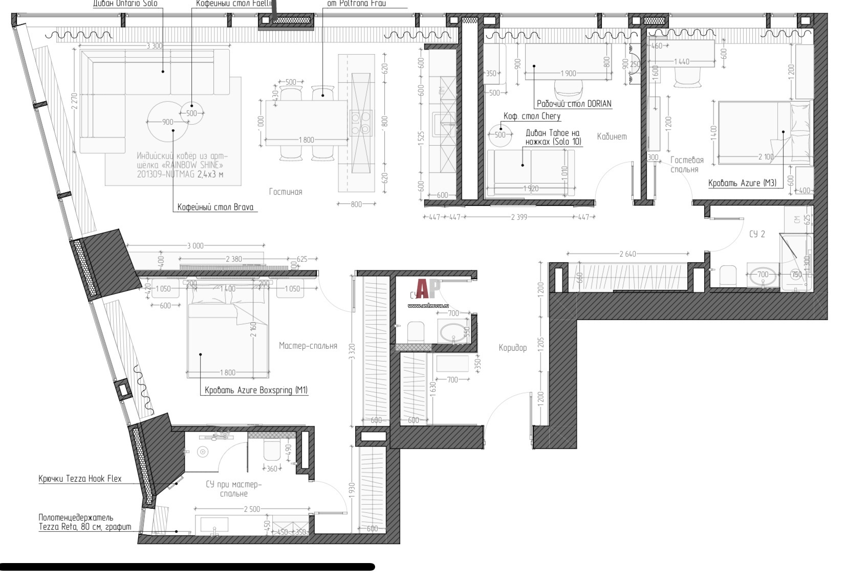
План 4-х комнатой квартиры в Москва-Сити.

Планировка холостяцкой квартиры в высотке Capital Towers. Общая площадь – 126 кв. м. 

Проект: Квартира в высотке Capital Towers для холостяка с сыном
Автор проекта: Степаненко Ксения
Объект: Мужская квартира в Москва-Сити
Общая площадь: 126 кв.м.