Закрыть галерею
Изображение 23 из 24

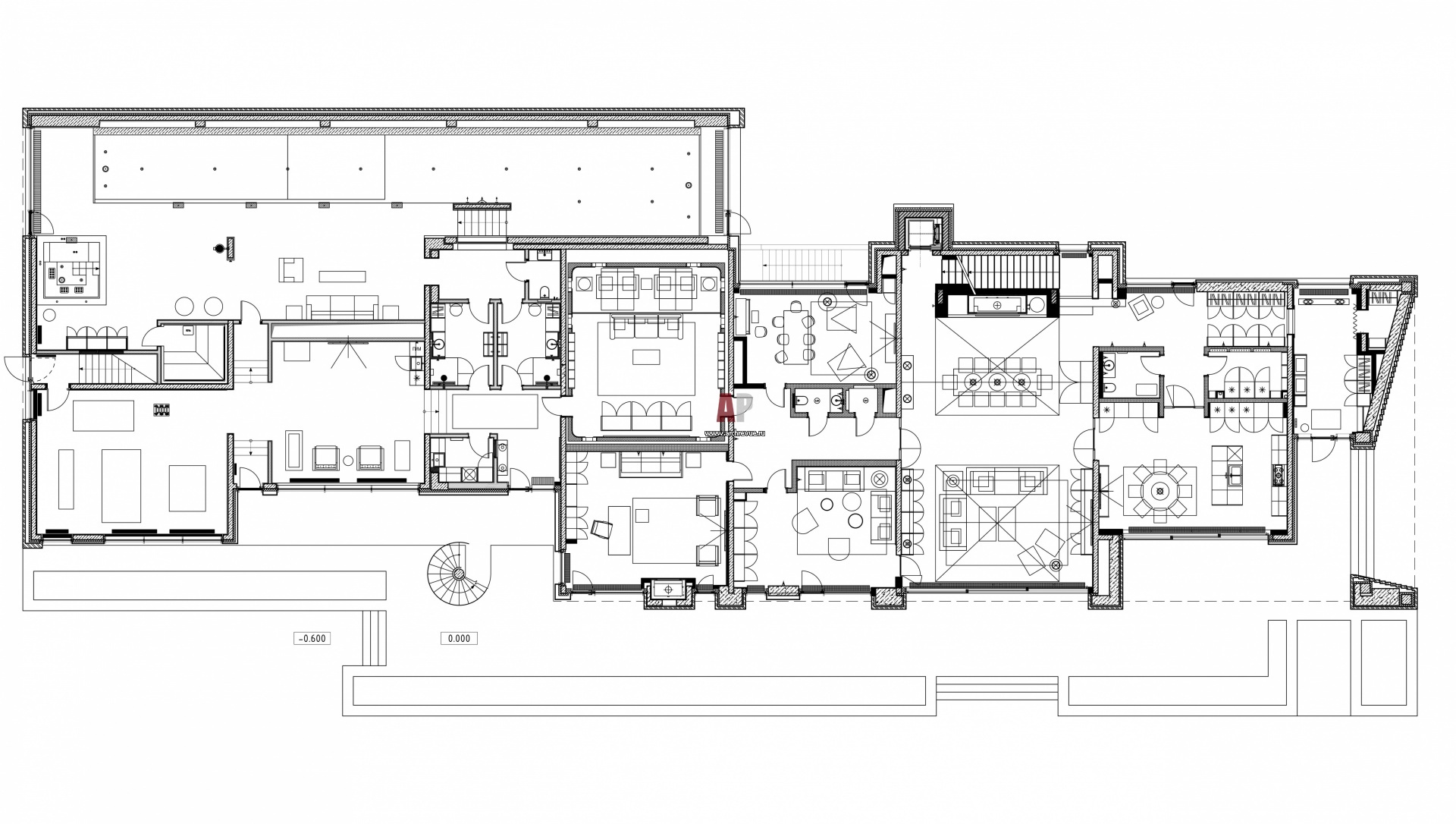
Планировка 1 этажа 2-х этажной семейной резиденции, 1900 кв. м.

План первого этажа двухэтажного дома для большой семьи. 

Проект: Фактурный интерьер двухэтажного дома в сосновом лесу
Автор проекта: Серафимович Екатерина
Объект: Семейная резиденция в бельгийском стиле
Общая площадь: 1900 кв.м.