Закрыть галерею
Изображение 18 из 18

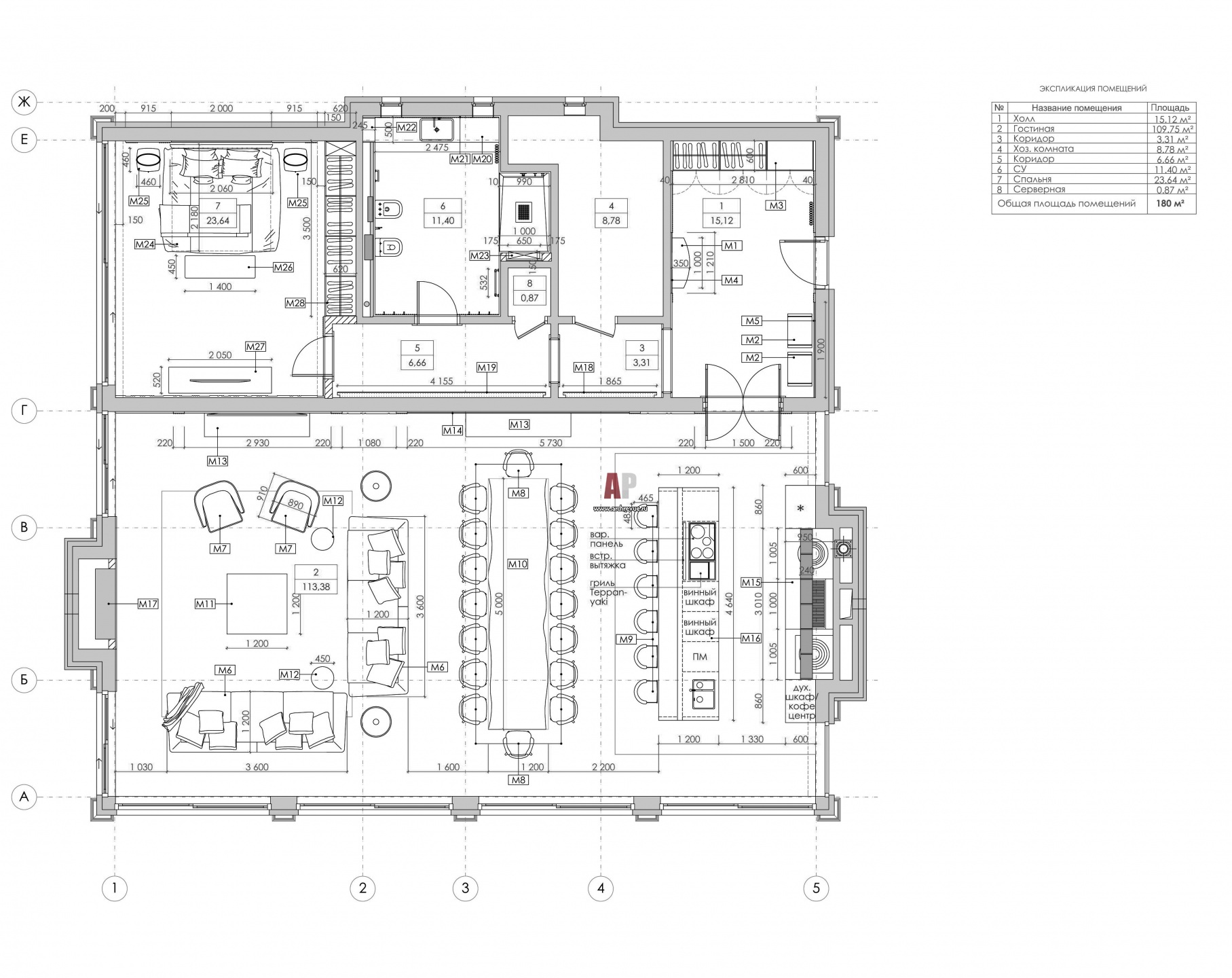
Планировка гостевого дома в подмосковной усадьбе.

План одноэтажного гостевого дома для ивентов и отдыха. Общая площадь – 188 кв. м.

Проект: Одноэтажный гостевой дом с парадным дизайном и налетом лоска
Автор проекта: Потемкина Елена
Объект: Светский интерьер для приемов и праздников
Общая площадь: 180 кв.м.