Закрыть галерею
Изображение 20 из 21

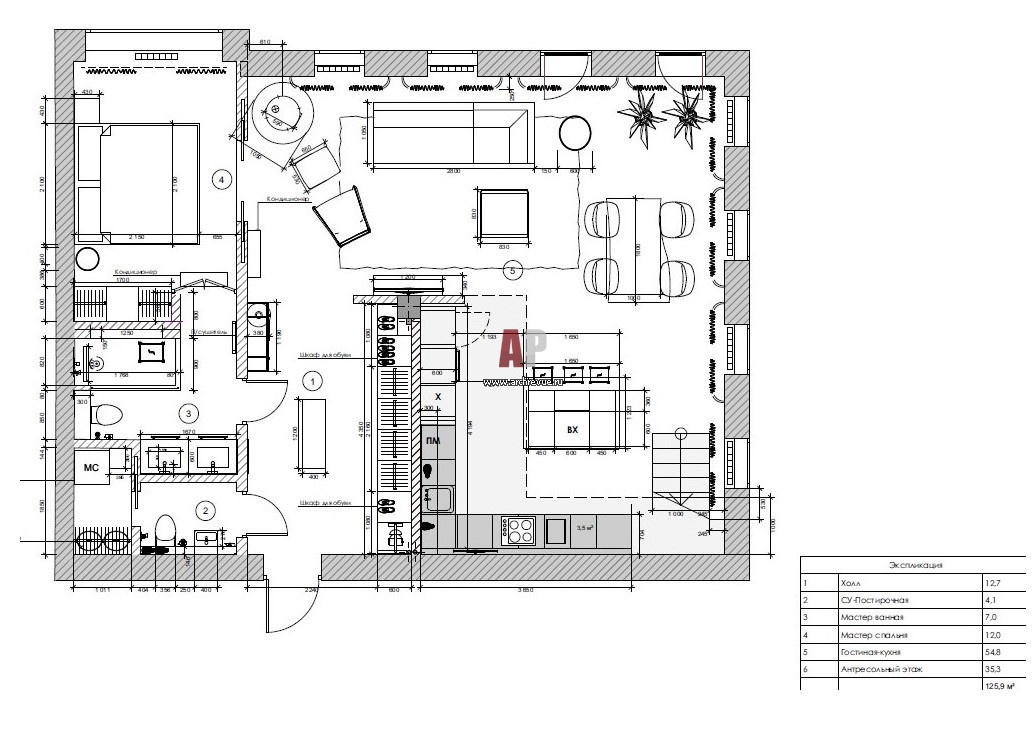
План первого этажа двухэтажной квартиры в мансарде. Общая площадь 127 кв. м.

Планировка 1 этажа 2-х уровневой квартиры с антресолью. 

Проект: Двухэтажная квартира на Крестовском острове в Санкт-Петербурге
Автор проекта: Рыкова Анастасия
Соавтор(ы): Денисова Анна
Объект: Мансардная квартира в стилистке тихой роскоши
Общая площадь: 127 кв.м.