Закрыть галерею
Изображение 40 из 40

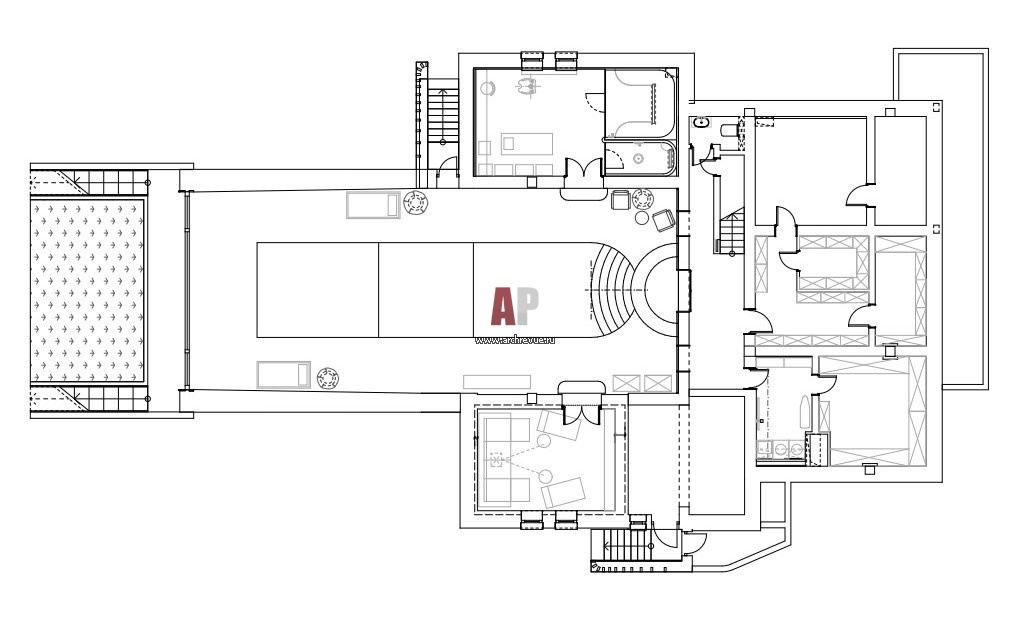
Перепланировка трехэтажного дома в Подмосковье, 900 кв. м. План цокольного этажа.

Реконструкция дома, построенного в 2000-х годах. Планировка цокольного этажа. 

Проект: Дом с элементами модернизма и иконами дизайна ХХ века
Автор проекта: Одынь Вера
Соавтор(ы): Трейвас Ольга
Объект: Модернистская дача в Подмосковье
Общая площадь: 900 кв.м.