Закрыть галерею
Изображение 40 из 40

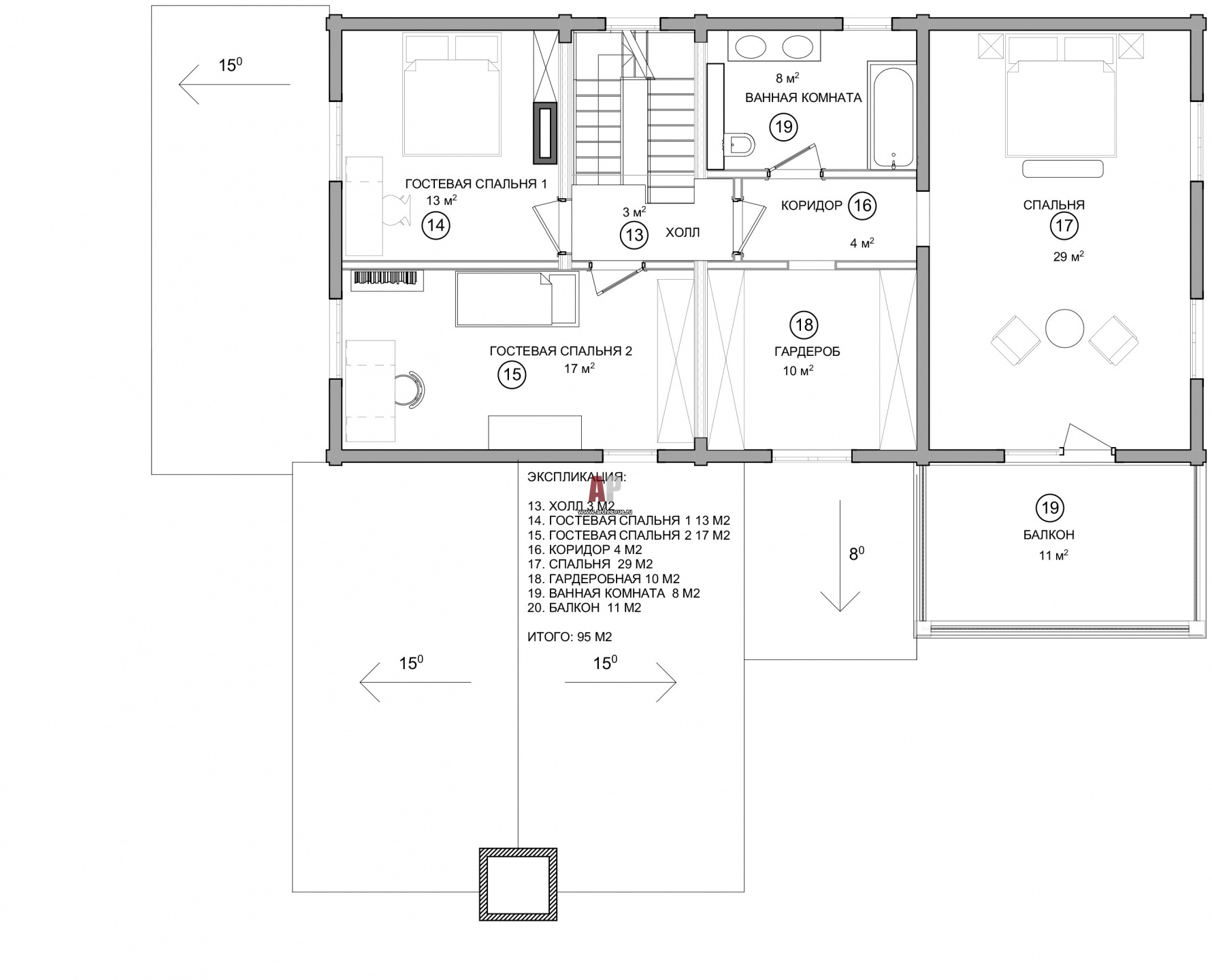
План второго этажа двухэтажного деревянного дома, 220 кв. м.

Планировка 2 этажа 2-х этажного дома из клееного бруса.  

Проект: Интерьер деревянного дома в традициях русской классики
Автор проекта: Гончар Ольга
Объект: Деревянная усадьба в Подмосковье
Общая площадь: 220 кв.м.